Beispiele für Ing.-Büro Konstruktionen
Schwimmerkonstruktion für einen Sanitär-Container
Schwimmerkonstruktion für ein stationäres Hausboot
Schwimmkonstruktion für Restaurant ARCHE NOAH
Entwurf einer schwimmenden Gas-Tankstelle
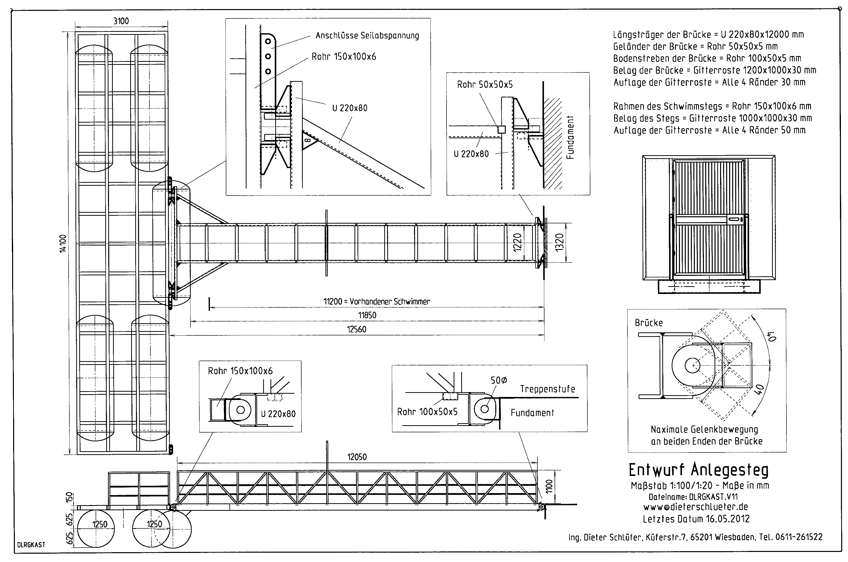
Sportboot-Steganlage im Rhein für DLRG Mainz-Kostheim
Sportboot-Anleger im Rhein bei Mainz
Entwurf einer Schwimmerkonstruktion aus ausrangierten Gastanks
"Mooringboy" Anlegehilfe für Yachten
Mast-Legehilfen für Motoryachten
Überlaufschutz für Kraftstofftanks bei Motoryachten
Notleiter für Yachthäfen
Steganlagen für Yachthäfen